Autorimessa/Garage, Rione Alto

440 mq2 | N.D. | N.D. | € 450.000,00
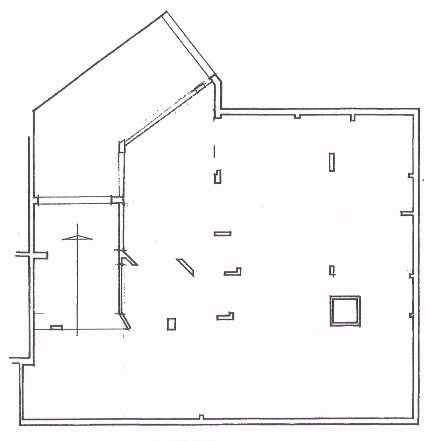
Descrizione

Proponiamo in vendita un’irripetibile opportunità immobiliare in una zona ad altissima densità abitativa e cronica carenza di parcheggi. Si tratta di un’ampia autorimessa (Cat. C/6) attualmente locata con ottima rendita, ma con un potenziale di valorizzazione straordinario tramite frazionamento.
IL PROGETTO DI SVILUPPO:
L'ampia metratura e la disposizione regolare degli spazi permettono la realizzazione di 10 box auto indipendenti.
Superficie Totale: 440 mq.
Frazionamento: Studio di fattibilità già ipotizzato per 10 unità (box singoli/doppi).
Accessibilità: Ampia rampa d'accesso e comodi spazi di manovra interni che facilitano l'operazione.
L’immobile si trova Al Rione Alto nelle vicinanze con via Via Sigmund Freud, una delle strade più commerciali e trafficate del quartiere.

Dati principali
Contratto
Vendita
Tipologia
Box / Garage
Categoria
Commerciale
Proprietà
Intera proprietà
Condizioni
Buono
Caratteristiche
Zona
Rione Alto
MQ complessivi
440 mq
Vani
N.D.
Piano
Piano seminterrato
Riscaldamento
N.D.
Box
N.D.
Bagni
N.D.
Balconi
N.D.
Posto auto
Coperto
Terrazzo/Giardino
NO
Cantinola
NO
Portiere/Vigilanza
NO
Box / Garage in Vendita
Rione Alto
Richiedi maggiori informazioni




Indirizzo e Mappa
via calvanico 80131 Napoli
Via L. Bianchi, 12/B
80131 Napoli Na
081 17833261
Partita Iva 10954721212
ml.immobiliare.ml@gmail.com
Segui ML immobiliare su

Facebook    Instagram    Youtube
Tutti i diritti sono riservati © 2016 ML IMMOBILIARE di Monica Luongo | Sito web realizzato da NapoliWeb S.r.l. - Web Agency Napoli | Siti web